Maîtrise d’ouvrage :
ERDF-RTE
Lieu : Aubervilliers - France
Architecte associé : Cyrille LAMBIN (Cyrlab)
BET : BERIM
Paysagiste : SEMPERVIRENS
Mission : APS, APD, PC, DCE, EXE, DET
Montant des travaux : 12 M € H.T
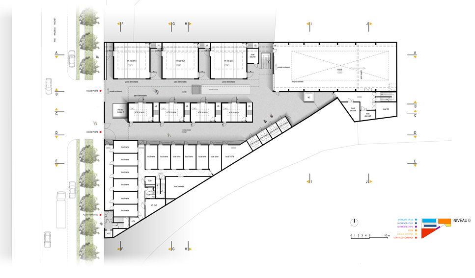
Programme : Création du Poste Source d’Aubervilliers de type grand urbain. 3 alvéoles TR-70Mva, 4 alvéoles ATR-30Mva, 4 alvéoles ATR-10Mva, PSEM, bâtiment de commande et un ERP en toiture.
Surface du programme : 8000 m²
Calendrier : Concours: Janvier 2014, Etudes : 2014-2015, Chantier: 2016-2017.





